CASAN aprimora abastecimento de água em Rio do Sul
Com investimento previsto de R$ 770 mil, a CASAN está em fase final do processo licitatório de um projeto fundamental para a cidade de Rio do Sul. A ação contempla um novo reservatório para atender moradores da parte mais alta do bairro Budag, além da recuperação do reservatório R5, que tem capacidade de armazenamento de 100 mil litros e fica localizado no bairro Sumaré.
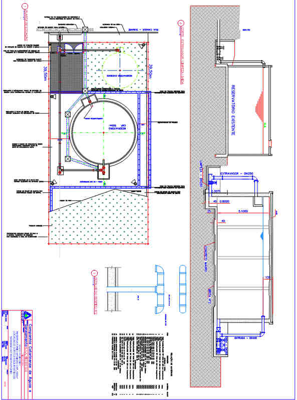
O novo reservatório, em concreto armado, será instalado ao lado do já existente R5. Com capacidade para 500 mil litros, vai atender diretamente mais de sete mil moradores. Também beneficiará de forma geral a população do Sistema Integrado Abastecimento de Águas de Rio do Sul (SIAA), em horários de alto consumo.
A escolha do local para instalação do novo reservatório foi definida a partir de estudos técnicos, sendo priorizado o atendimento do bairro Budag, que apresentou grande crescimento populacional nos últimos anos. Historicamente afetada por enchentes, a população de Rio do Sul tem procurado regiões mais altas, que apresentam dificuldades operacionais para garantia do abastecimento, principalmente nos meses mais quentes do ano e em momentos de picos de consumo de água.
“O crescimento da cidade e as diversas ocorrências de enchentes nos trazem desafios constantes. A construção desse novo reservatório trará mais tranquilidade para o trabalho de nossas equipes e qualidade para o abastecimento”, informa o gerente operacional da SRN, André Ledra Zagheni.
.jpg)
Ilustração do projeto do novo reservatório de Rio do Sul.
___________________________________
Gerência de Comunicação Social da CASAN
Jornalista Arley Reis DRT/SC 746 | areis@casan.com.br
Jornalista Suzete Antunes DRT/RS 5588 | santunes@casan.com.br
Jornalista Ricardo Stefanelli DRT/RS 5371 | ristefanelli@casan.com.br